


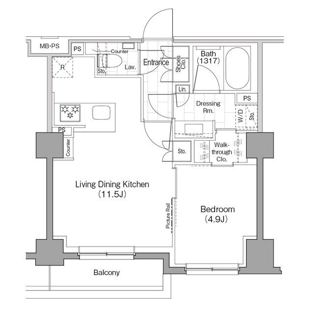
This 1LDK apartment offers 40㎡ of efficient and comfortable living space on the 2nd floor of a seven-story building completed in 2018. The well-considered layout separates the bedroom from the open-plan living, dining, and kitchen area, creating a sense of privacy and functionality ideal for singles or couples. Large windows invite ample natural light, enhancing the bright, airy atmosphere throughout the home. Contemporary finishes and practical storage solutions contribute to a streamlined, low-maintenance lifestyle. Residents benefit from modern amenities and the security of a recently built property, with standard initial costs applying.
Neighborhood
Situated in Shinjuku 6-chome, this apartment enjoys a prime location within one of Tokyo’s most vibrant and convenient wards. The property is just a short walk from Shinjuku 3-chome Station and the entrance to Shinjuku Gyoen National Garden, offering both excellent city access and the tranquility of green space nearby. Daily shopping is effortless with York Foods Shinjuku Tomiku store and 7-Eleven Tokyo Medical University Store close at hand, while a variety of local cafés and essentials—such as Sucre Sale and Drug Papas—enrich the neighborhood atmosphere. The area’s blend of lively urban energy and practical conveniences makes it a highly desirable setting for modern city living.