

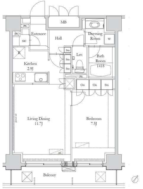
This 1LDK apartment offers 54㎡ of comfortable living space on the 14th floor of a 16-story building completed in 2008. The well-planned layout provides a clear separation between the bedroom and the open living-dining area, allowing for both privacy and a sense of spaciousness. Large windows bring in ample natural light, enhancing the airy feel throughout the home. Modern fixtures and thoughtful design details support a convenient urban lifestyle. Standard initial costs apply, and the property is available on a three-year contract.
Neighborhood
Situated in Iwamotocho, this residence places you in the heart of Chiyoda Ward, one of Tokyo’s most central and dynamic districts. The surrounding area is characterized by a blend of business activity and residential calm, with everyday essentials such as supermarkets, cafés, and convenience stores within easy reach. Access to Bakurocho and Bakuro Yokoyama stations is just a short walk away, providing smooth connections to major city hubs. The neighborhood’s mix of traditional and modern influences creates a practical and engaging environment for professionals seeking both convenience and comfort in central Tokyo.