




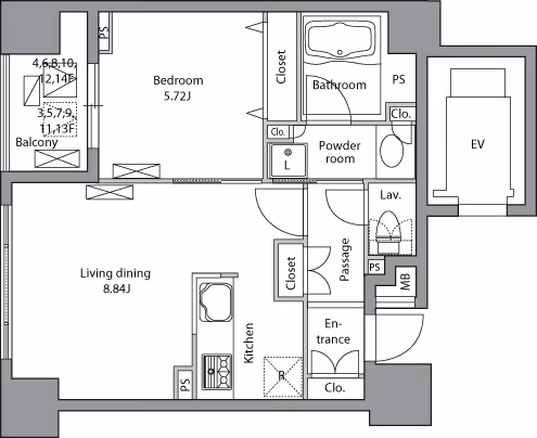
Residia Kanda Iwamotocho 1201 is a well-designed 1LDK apartment offering 44㎡ of comfortable living space on the 12th floor of a 15-story building completed in 2004. The layout separates the bedroom from the living-dining area, providing both privacy and a sense of openness. Large windows invite natural light, creating a bright and airy atmosphere throughout the home. The practical floor plan supports both relaxation and entertaining, while modern fixtures ensure daily convenience. Standard initial costs apply, and the property is available on a two-year contract.
Neighborhood
Situated in Iwamotocho, Chiyoda Ward, this residence enjoys a prime location in one of Tokyo’s most central and dynamic districts. The area blends business and residential life, offering a vibrant urban environment with easy access to cafés, supermarkets, and local dining options. Both Iwamotocho and Akihabara stations are within a short walk, providing excellent connectivity to the rest of the city. The neighborhood’s convenient transport links and lively atmosphere make it an ideal choice for professionals seeking a balance of work and leisure in central Tokyo.
