

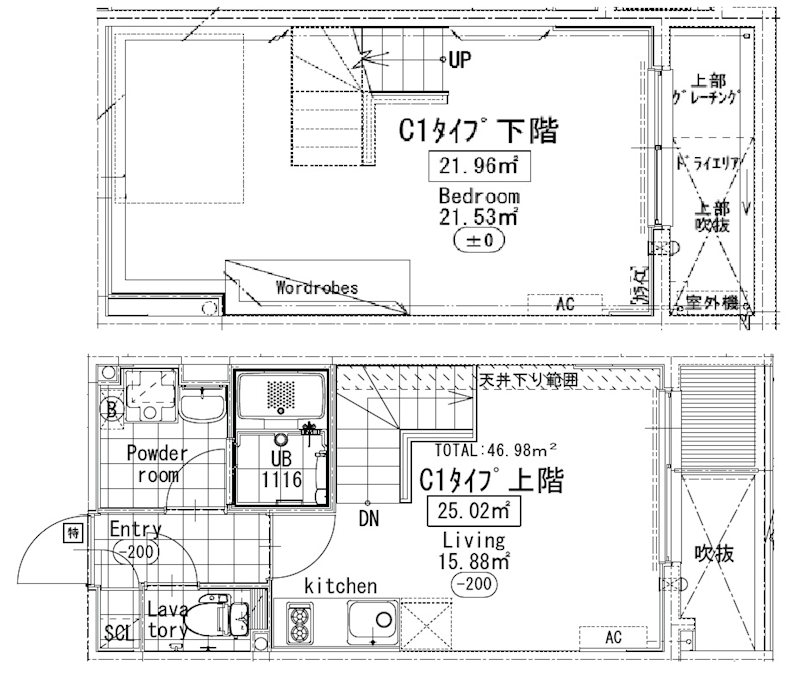
Primal Komazawa University is a modern 1LDK apartment offering 47㎡ of efficiently designed living space on the first floor of a four-story building completed in 2023. The layout provides a comfortable separation between the living-dining area and the private bedroom, creating a sense of openness while maintaining privacy. Large windows allow for ample natural light, enhancing the airy atmosphere throughout the home. The contemporary kitchen and bathroom facilities are tailored for everyday convenience, while practical storage solutions ensure a clutter-free environment. Residents benefit from the security and comfort expected in a recently built property, with standard initial costs applying.
​
Neighborhood
Situated in Kamiuma within Setagaya, this property enjoys a quiet yet highly accessible location just four minutes from Komazawa-Daigaku Station, with Nishitaishido Station also within reach. The surrounding area offers a well-balanced urban lifestyle, with daily amenities such as Maruetsu Manaka store and FamilyMart Komazawa University Station Store close by for shopping convenience. Fitness and leisure options are available at Tipness Komazawa University 24hours, while the Setagaya Kamiuma Post Office provides essential services nearby. Setagaya’s reputation as a popular residential ward ensures a pleasant living environment with easy connections to central Tokyo.