


.jpg)
.jpg)





.jpg)


.jpg)






.jpg)

.svg.avif)








.svg.avif)
























































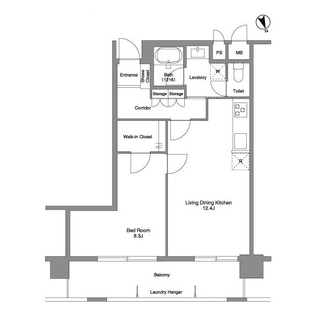
Comforia Shibaura II Room 0807 is a well-appointed 1LDK apartment offering 52㎡ of comfortable living space on the 8th floor of a 10-story building completed in 1996. The layout provides a clear separation between the bedroom and the open-plan living-dining area, creating a practical environment for both relaxation and entertaining. Large windows invite ample natural light, contributing to a bright and airy atmosphere throughout the home. The efficient floor plan maximizes usable space, ensuring everyday functionality and ease of living. Residents benefit from the privacy and quiet of a higher floor, along with the security and convenience expected in a modern Tokyo apartment. Standard initial costs apply.
Neighborhood
Situated in the Shibaura 2-chome area of Minato Ward, this property offers a prime location with easy access to Tamachi Station, just a 10-minute walk away. Shibaura is known for its blend of urban convenience and tranquil canalside ambiance, making it a popular choice among professionals seeking proximity to central Tokyo business districts. The neighborhood features a mix of residential towers and local amenities, with a calm, international atmosphere characteristic of Minato. Excellent transport links provide quick connections to major city hubs, while the surrounding area offers a peaceful retreat from the bustle of downtown. This location is ideal for those who value both connectivity and a relaxed residential environment.