




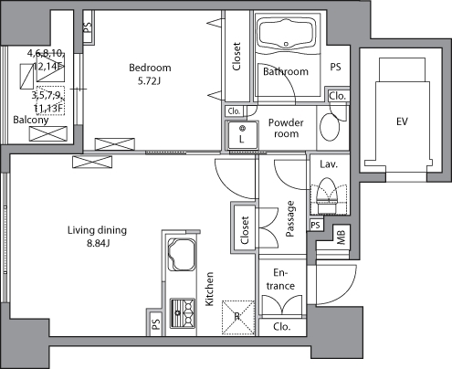
Residia Kanda Iwamotocho 0201 is a 1LDK apartment offering 44㎡ of efficiently designed living space on the 2nd floor of a 15-story building completed in 2004. The layout provides a clear separation between the bedroom and the open-plan living-dining area, creating a comfortable environment for both relaxation and entertaining. Large windows invite natural light, enhancing the sense of space and making the home feel bright and welcoming. Practical features and a well-maintained interior contribute to everyday convenience, while standard initial costs apply for moving in.
Neighborhood
Situated in Iwamotocho, Chiyoda Ward, this residence enjoys a central Tokyo location with a blend of business and residential character. The area offers easy access to both Iwamotocho Station and the vibrant Akihabara district, placing shopping, dining, and daily necessities within close reach. Local streets are lined with cafés, convenience stores, and supermarkets, making daily life straightforward and enjoyable. With excellent train connections, residents benefit from quick commutes to major city hubs while enjoying the unique energy and convenience of Chiyoda.
