



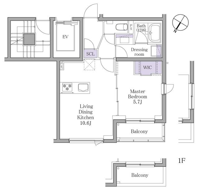
Ipse Shirokane Room 101 is a newly built 1LDK apartment offering 41㎡ of well-designed living space on the first floor of a five-story building completed in 2025. The layout provides a comfortable separation between the bedroom and the living-dining area, creating both privacy and a sense of openness. Large windows invite natural light into the main living spaces, enhancing the airy, modern feel. Practical features and a contemporary finish ensure everyday comfort, while the efficient floor plan makes the most of every square meter. Residents benefit from the security and peace of mind that come with a new construction, and standard initial costs apply.
Neighborhood
Situated in the Platinum district of Minato, this property enjoys a prime location with easy access to both Shirokanedai and Shirokane Takanawa stations, each just a short walk away. The area is known for its refined, international atmosphere and convenient city living. Daily shopping is effortless with Maruetsu Petit Shirokanedai store and FamilyMart Takanawa 1-chome store nearby, while Shirokane Ael City offers additional retail and dining options. The presence of Meiji Gakuin University adds a vibrant, academic touch to the neighborhood, making it appealing for professionals and students alike. With excellent transport links and a blend of urban convenience and quiet residential streets, this Minato address offers a sophisticated Tokyo lifestyle.