

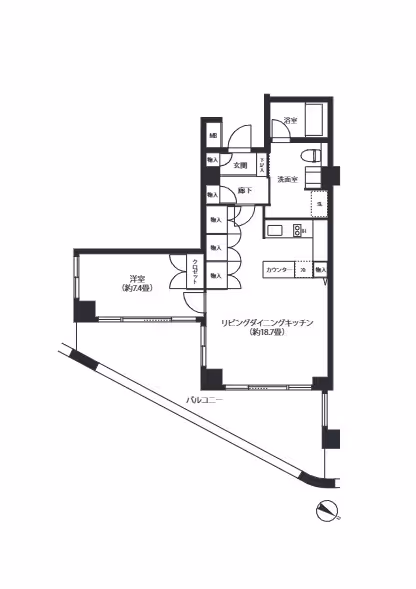
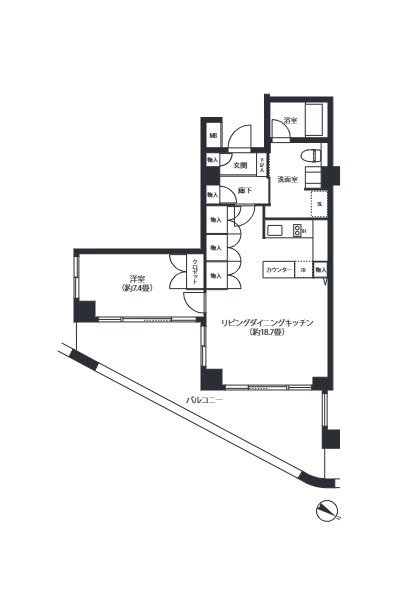
Hulic Asakusa 1-chome 402 is a spacious 1LDK apartment offering 68㎡ of comfortable living space on the 4th floor of an 8-story building completed in 1990. The layout provides a clear separation between the bedroom and the open-plan living-dining area, creating a sense of privacy and versatility. Large windows invite ample natural light, enhancing the airy atmosphere throughout the home. Practical features and a well-proportioned interior make this residence suitable for singles or couples seeking both functionality and comfort. Standard initial costs apply, in line with Tokyo rental practices.
Neighborhood
Situated in the heart of Asakusa, this property places you amid one of Tokyo’s most vibrant and historic neighborhoods. The immediate area is known for its lively streets, traditional charm, and convenient access to daily essentials such as supermarkets, cafés, and local dining options. With Asakusa Station just a minute away and Tawara Town Station within easy reach, residents enjoy excellent connectivity to the rest of the city. The surrounding Taito Ward offers a unique blend of cultural landmarks, green spaces, and a welcoming community atmosphere, making it an appealing choice for those seeking both urban energy and a sense of tradition.
