



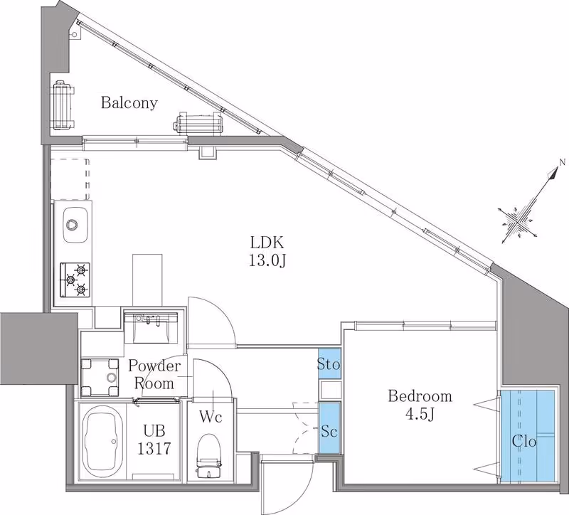
Minamiazabu Sendaizaka Residence 606 is a modern 1LDK apartment offering 43㎡ of thoughtfully designed living space on the 6th floor of a 14-story building completed in 2023. The layout provides a comfortable separation between the bedroom and living-dining area, creating a sense of privacy while maintaining an open, airy feel. Large windows invite ample natural light, enhancing the apartment’s bright and welcoming atmosphere. Contemporary finishes and efficient room design ensure both practicality and comfort for daily life. Standard initial costs apply.
Neighborhood
Situated in Minamiazabu, this residence enjoys a prime location in one of Minato Ward’s most desirable neighborhoods. The area is known for its international character, refined residential streets, and convenient access to a variety of cafés, supermarkets, and everyday amenities. Azabujuban Station is just a short walk away, offering excellent connectivity to central Tokyo and major business districts. Residents can enjoy the balance of a peaceful, upscale environment with the vibrancy of nearby shopping and dining options, making it ideal for professionals seeking both tranquility and urban convenience.
