



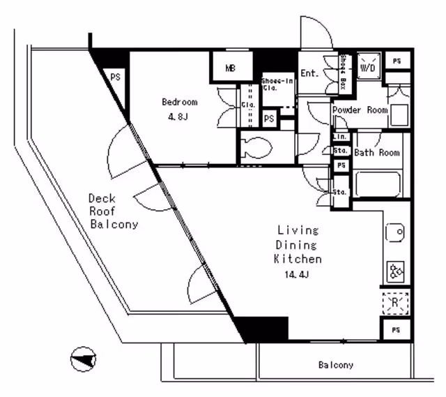
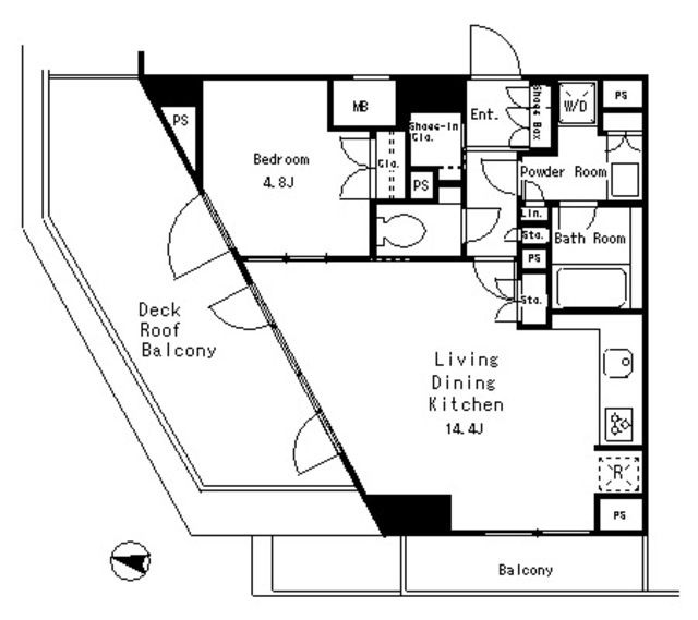
MFPR Court Meguro Minami 704 is a well-appointed 1LDK apartment offering 48㎡ of comfortable living space on the 7th floor of a 10-story building completed in 2008. The layout provides a clear separation between the living/dining area and the bedroom, creating a sense of privacy and openness that suits both relaxing and entertaining. Large windows invite natural light into the main living spaces, enhancing the bright and airy atmosphere throughout the home. Practical features and a modern design ensure everyday convenience, while the efficient floor plan allows for flexible furnishing options. Residents can expect standard initial costs associated with a quality Tokyo rental.
Neighborhood
Situated in Shimomeguro, Meguro Ward, this property enjoys a prime location with easy access to both Meguro Station and Fudoumae Station, making commuting to central Tokyo straightforward. The neighborhood is known for its blend of quiet residential streets and vibrant local amenities, with supermarkets such as My Basket and Maruetsu nearby for daily shopping needs. Convenience stores like 7-Eleven and Ministop are just a short walk away, while the Shimomeguro Post Office and the turtle shell green area add further practicality and a touch of greenery to the surroundings. Meguro’s reputation for its café culture and relaxed atmosphere makes this an appealing choice for those seeking a balanced urban lifestyle.