

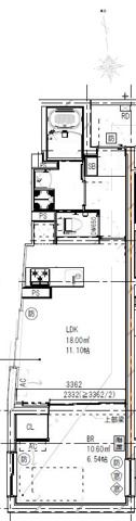
This modern 1LDK apartment is located just 2 minutes from Sangenjaya Station, one of Setagaya’s most vibrant and convenient hubs. With cafes, supermarkets, and daily amenities right at your doorstep, the area offers both lively city living and a relaxed neighborhood atmosphere. Spanning 40.27㎡ on the 3rd floor of a contemporary low-rise built in 2023, the apartment features a bright south-facing layout, free internet, and a stylish designer finish. Perfect for singles, couples, or remote-working professionals, it combines modern comfort with excellent access to central Tokyo, while also welcoming pets for those seeking a cozy urban home with flexibility.