


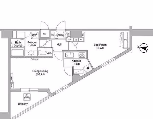
Comforia Shimokitazawa Room 1001 is a well-designed 1LDK apartment offering 49㎡ of comfortable living space on the 10th floor of an 11-story building completed in 2005. The layout provides a clear separation between the bedroom and the living-dining area, ensuring both privacy and a sense of openness. Large windows on a high floor allow for excellent natural light throughout the day, creating a bright and inviting atmosphere. The modern kitchen and practical storage solutions contribute to everyday convenience, while the overall design supports an efficient and uncluttered lifestyle. Standard initial costs apply, making this residence a straightforward choice for those seeking quality and comfort in Setagaya.
Neighborhood
Situated in Hanegi, Setagaya, this property enjoys a prime location with easy access to both Shimokitazawa Station and Shindaita Station, connecting residents to central Tokyo and popular neighborhoods with ease. The lively streets of Shimokitazawa are just a short walk away, offering a vibrant mix of shopping, dining, and cultural experiences. Everyday essentials are close at hand, with options like My Basket Shimokitazawa Station North Store and 7-Eleven Setagaya Hanegi store nearby, while local cafés such as Starbucks Coffee Shimokitazawa store provide inviting spaces to relax. The area’s blend of convenience and character makes it especially appealing for professionals and singles seeking an urban yet livable environment.