Request Viewing
Thank you for filling out the form!
To keep things smooth and efficient, please message us directly using one of the platform below:
Oops! Something went wrong while submitting the form.
No items found.
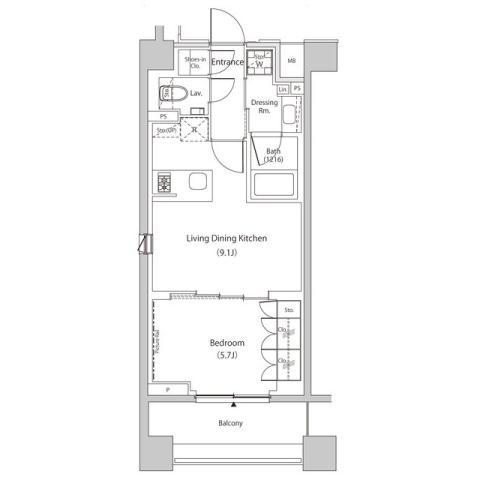
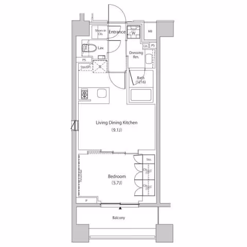
The Park Habio Meguro Place 501
Meguro
,
Shimomeguro 1-5-11
290,000
JPY/mo
JPY
Management Fee
20,000
JPY/mo
Deposit:
290,000
JPY
Key money:
0
JPY
Layout:
1LDK
Size:
38
m2
Meguro
Station
5
minutes walk
Fudomae
Station
14
minutes walk

Key Features

Pet friendly
Free internet
Separate bathroom
Balcony
Air conditioner
Autolock
Delivery box
Security camera

Overview

The Park Habio Meguro Place 501 is a modern 1LDK apartment offering 38㎡ of well-designed living space on the 5th floor of an 8-story building completed in 2025. The layout provides a comfortable separation between the living and bedroom areas, creating an efficient and inviting environment for singles or couples. Large windows bring in natural light, enhancing the sense of openness throughout the home. The contemporary kitchen and living area are thoughtfully arranged for both relaxation and entertaining, while practical storage solutions help keep the space organized. Residents benefit from the security and convenience expected in a newly constructed property, with standard initial costs applying.

Neighborhood

Situated in Shimomeguro, Meguro ward, this apartment enjoys a prime location just five minutes from Meguro Station, with Fudoumae Station also within easy reach. The neighborhood is known for its blend of urban energy and relaxed local charm, offering a wide selection of cafés and dining options. Everyday essentials are close at hand, with shops like Lawson Shimomeguro 1-chome, My Basket Meguro Taikobashi, and Cocokara Fine Meguro all nearby. The area’s excellent transport links and convenient amenities make it an appealing choice for those seeking a balanced Tokyo lifestyle.

Location

Move-in date
Ready to move-in
Intitial cost
First month rent
¥
290,000
Key Money
¥
0
Management fee
¥
20,000
Deposit
¥
290,000
Guarantor Fee
¥
145,000
~
Fire Insurance
¥
20,000
~
Key Exchange Fee
¥
~
Agency Fee
¥
290,000
Campaign discount
- ¥
Total Initial Cost
¥
1055000
Book a viewing
Get in touch to view this property
Agent
Mike Abdullaev
CEO & Founder
Request viewing

Browse more properties

Other units in this building

No items found.

Similiar properties