

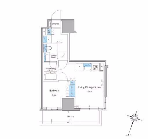
Lephone Progressive Shibuya Hilltop 1112 is a modern 1LDK apartment offering 35㎡ of efficiently designed living space on the 11th floor of an 18-story building completed in 2022. The layout provides a comfortable separation between the bedroom and living area, ensuring both privacy and openness within a compact footprint. Large windows invite natural light into the home, creating a bright and airy atmosphere high above the city. The practical design supports daily comfort, with contemporary fixtures and thoughtful storage solutions throughout. Residents benefit from the security and convenience of a recently built high-rise, while standard initial costs apply.
Neighborhood
Situated in Aobadai, Meguro, this residence enjoys a prime location on a quiet yet well-connected street. The property is just eight minutes from Shinsen Station and ten minutes from Ikejiri-Ohashi Station, offering smooth access to central Tokyo and the vibrant Shibuya area. Daily essentials are easily met with FamilyMart Meguro Aobadai 4-chome store and Maruetsu Petit Shibuya Shinsen store nearby, while Cocokara Fine Meguro Ohashi store provides convenient pharmacy services. The neighborhood blends the relaxed, residential character of Meguro with the energy and amenities of neighboring Shibuya, making it an appealing choice for professionals seeking both tranquility and urban convenience.