







.avif)
.avif)




.avif)
.avif)
















.avif)















.avif)















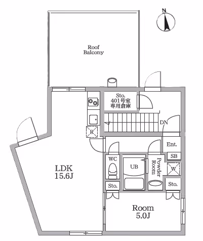
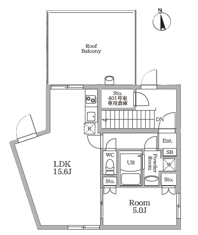
Laviere Gakugei University 401 is a modern 1LDK apartment offering 47㎡ of thoughtfully designed living space on the top floor of a four-story building completed in 2024. The layout provides a comfortable separation between the bedroom and the open-plan living-dining area, creating a sense of privacy and flexibility for both relaxation and entertaining. Large windows allow for ample natural light throughout the home, enhancing the bright and airy atmosphere. Quality fixtures and finishes contribute to a refined living experience, while standard initial costs apply for move-in.
Neighborhood
Situated in Takaban 3-chome, this residence enjoys a prime location in Meguro Ward, just a three-minute walk from Gakugei-Daigaku Station. The neighborhood is known for its relaxed yet vibrant character, blending residential calm with convenient urban amenities. Residents benefit from easy access to supermarkets, cafés, and local dining options, all within walking distance. The area’s tree-lined streets and proximity to central Meguro and other key Tokyo districts make it an attractive choice for those seeking both comfort and connectivity in daily life.