

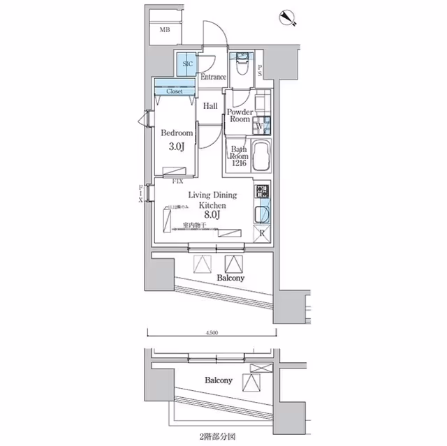
Duo Flats Ikejiri Ohashi 602 this 1LDK apartment offers 32㎡ of efficiently designed living space on the 6th floor of a 12-story building completed in 2025. The layout provides a clear separation between the bedroom and living-dining area, ensuring privacy and comfort for singles or couples. Large windows invite ample natural light, creating a bright and airy atmosphere throughout the home. The contemporary construction delivers modern fixtures and a practical floor plan that maximizes every square meter. Residents benefit from the security and convenience typical of new Tokyo apartments, with standard initial costs applying.
Neighborhood
Situated in Ohashi, Meguro, this property enjoys a prime location just a 7-minute walk from Ikejiri-Ohashi Station and within easy reach of Shinsen Station as well. The neighborhood is known for its relaxed yet vibrant atmosphere, with convenient access to daily essentials such as Gyomu Super Meguro Ohashi Store and FamilyMart Meguro Aobadai 3-chome store. Local amenities like Cocokara Fine Meguro Ohashi store add to the ease of everyday living. Meguro’s reputation for stylish cafés and diverse dining options further enhances the appeal, offering a comfortable urban lifestyle with excellent connectivity to central Tokyo.