




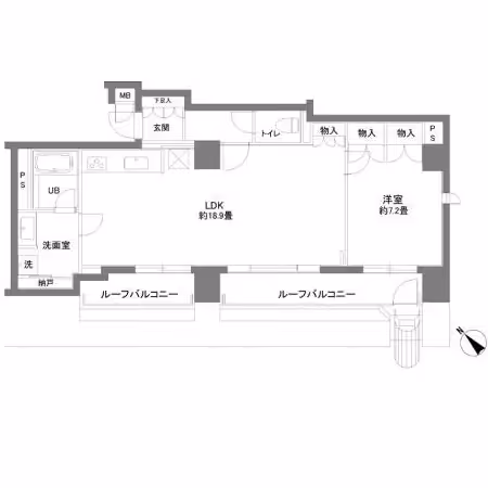
Castalia Ochanomizu 703 is a spacious 1LDK apartment offering 63㎡ of comfortable living on the 7th floor of an 8-story building completed in 2002. The layout provides a clear separation between the bedroom and the living-dining area, creating an inviting sense of openness while maintaining privacy. Large windows allow for generous natural light, enhancing the overall brightness and atmosphere of the home. Practical features and a well-designed interior ensure daily convenience, while standard initial costs apply for moving in.
Neighborhood
Situated in Kanda Ogawamachi within Chiyoda Ward, the property enjoys a central Tokyo location known for its vibrant mix of business, academia, and culture. The neighborhood offers a blend of urban energy and residential calm, with cafés, supermarkets, and everyday amenities conveniently nearby. Both Jimbocho and Shin-Ochanomizu stations are just a short walk away, providing excellent connectivity to major city hubs. This area is well-suited for those seeking a dynamic yet comfortable urban lifestyle, with easy access to work, study, and leisure options throughout central Tokyo.