


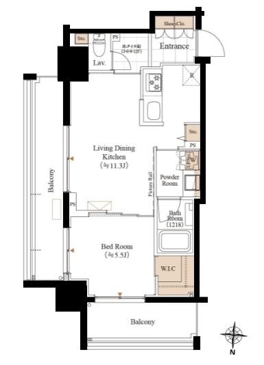
This one-bedroom (1LDK) apartment is located in the Bransisesta Ryogoku condominium in Sumida-ku. Situated on the 5th floor of a 13-story building constructed in March 2021, this east-facing corner unit benefits from excellent light and ventilation. The location is extremely convenient, just a 4-minute walk from Ryogoku Station on the Toei Oedo Line and an 8-minute walk from the JR Sobu Line station. The apartment will be available for move-in in mid-October 2025.