


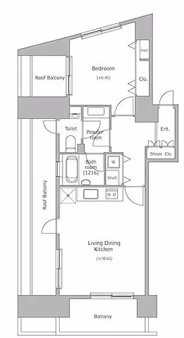
This 1LDK apartment offers 48㎡ of comfortable living space on the 9th floor of a 12-story building completed in 1999. The layout is thoughtfully designed to provide a clear separation between the bedroom and the open-plan living, dining, and kitchen area, creating an efficient and inviting environment well-suited for singles or couples. Large windows allow for ample natural light, enhancing the sense of openness throughout the home. Practical features and a well-proportioned interior make daily living both convenient and enjoyable. Residents benefit from the privacy and quiet that comes with being on a higher floor. Standard initial costs apply for this property, reflecting its quality and central location.
Neighborhood
Situated in the heart of Azabujuban, Minato, this residence enjoys a prime location just three minutes from Azabujuban Station, with Akabane Bridge Station also within easy reach. The neighborhood is known for its cosmopolitan atmosphere and blend of traditional charm with modern conveniences. Everyday essentials are close at hand, with the Daiei Azabujuban store and FamilyMart Omotesando Minami store nearby for shopping needs. Educational facilities such as Higashimachi Elementary School and Roppongi Junior High School are also in the vicinity, adding to the area’s appeal for a range of residents. The vibrant local scene and excellent transport access make this an ideal base for enjoying central Tokyo living.