


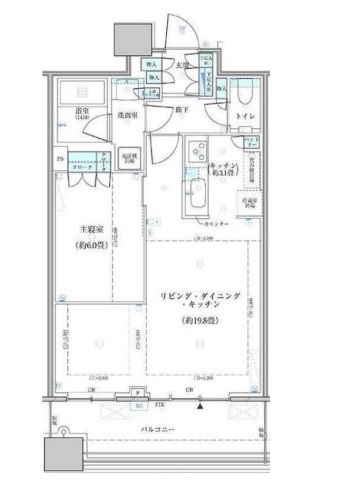
Park Tower Kachidoki South 4810 is a contemporary 1LDK apartment offering 57㎡ of thoughtfully designed living space on the 48th floor of a striking 58-story tower completed in 2023. The open-plan layout provides a seamless flow between the living, dining, and kitchen areas, while the separate bedroom ensures privacy and comfort. Expansive windows on this high floor invite ample natural light and offer a sense of openness, complemented by modern fittings and efficient storage solutions. The apartment is crafted for both relaxation and everyday practicality, with quality fixtures throughout. Residents can expect the convenience and security associated with a premium high-rise, and standard initial costs apply.
Neighborhood
Situated in Kachidoki 4-chome, Chuo Ward, this residence enjoys a prime position just two minutes from Kachidoki Station, offering swift access to central Tokyo. The local area is well-served by everyday amenities, including supermarkets such as Maruetsu Harumi 3-chome and Tobu Store Kachidoki, as well as convenient options like Lawson Kachidoki 4-chome and the dining selections at Kitchen Origin. Harumi Triton, a popular shopping and lifestyle complex, is also nearby, providing additional leisure and retail options. The neighborhood blends the vibrancy of Chuo Ward with a comfortable, urban residential atmosphere, making it well-suited for professionals seeking both connectivity and convenience.