



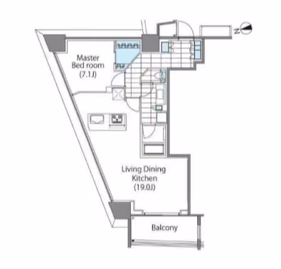
This 1LDK apartment offers 63㎡ of comfortable, modern living on the 14th floor of Comforia Shinjuku East Side Tower 1401, a 32-story residence completed in 2012. The spacious layout features a well-proportioned living and dining area, a separate bedroom, and large windows that invite in ample natural light while providing a sense of openness above the city. Practical design elements ensure everyday convenience, with efficient storage solutions and a contemporary kitchen and bath. The elevated position enhances privacy and quiet, while the building itself provides the security and amenities expected of a premium high-rise. Standard initial costs apply for move-in.
Neighborhood
Situated in Shinjuku 6-chome, this residence is ideally placed for enjoying the vibrant energy and convenience of central Shinjuku. Both Higashi-Shinjuku and Shinjuku 3-chome stations are within a five-minute walk, offering excellent access across Tokyo. Daily shopping is effortless with Maruetsu and My Basket supermarkets nearby, and essentials are always within reach at the Lawson and 7-Eleven on the surrounding streets. The neighborhood blends the excitement of Shinjuku’s entertainment and business districts with the practicality of having pharmacies, post offices, and other services just steps from your door.