


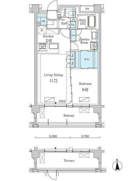
Grandeur Premium Yoyogi Oyama Room 103 is a recently built 1LDK apartment offering 54㎡ of comfortable living space on the first floor of a modern three-story building completed in 2023. The well-planned layout separates the living-dining area from the bedroom, creating a sense of privacy and openness ideal for singles or couples. Large windows allow for ample natural light, enhancing the bright and welcoming atmosphere throughout the home. The contemporary design features practical storage solutions and quality fixtures, supporting a convenient and relaxing daily life. Standard initial costs apply, reflecting the premium nature of this Shibuya residence.
Neighborhood
Situated in Daisencho, Shibuya, this property enjoys a peaceful residential setting with excellent access to both Higashikitazawa and Yoyogi-Uehara stations, making commutes across Tokyo straightforward. The neighborhood is well-served by local amenities, including the OdakyuOX Yoyogi Uehara store for daily shopping and a Lawson convenience store just moments away. Residents can enjoy a coffee break at Starbucks Coffee Acorde Yoyogi Uehara or pick up fresh meals from Kitchen Origin nearby. With its blend of quiet streets and easy access to vibrant city life, this area offers a highly livable environment in one of Tokyo’s most desirable wards.