



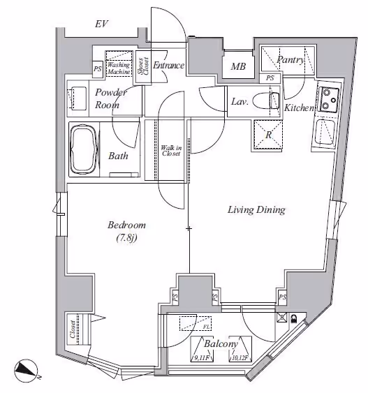
Casa Splendido La plus Motoakasaka 701 is a modern 1LDK apartment offering 50㎡ of well-planned living space on the 7th floor of a 13-story building completed in 2024. The layout provides a comfortable separation between the bedroom and living-dining area, creating both privacy and openness. Large windows invite natural light throughout the home, while contemporary finishes and practical design ensure a pleasant daily environment. Residents benefit from the advantages of a recently built property, with standard initial costs applying for move-in.
Neighborhood
Situated in Motoakasaka, Minato Ward, this address places you in one of Tokyo’s most central and prestigious neighborhoods. The area is known for its blend of business, government, and residential life, offering a calm yet cosmopolitan atmosphere. Daily conveniences such as supermarkets, cafés, and local dining are easily accessible, while nearby parks provide welcome green spaces amid the city. With Akasaka Mitsuke and Nagatacho stations both within easy walking distance, residents enjoy excellent connectivity across Tokyo, making this location ideal for professionals seeking both convenience and urban sophistication.
