





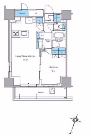
This is a premium top-floor, corner apartment in a modern high-rise, offering expansive city views from its 18th-floor position. The real estate agent is promoting this property with special offers including no brokerage fee and a free rent period. Its prime location on the Aobadai hilltop is excellent, placing it within a short walk of both Shinsen and Shibuya stations. The spacious 1LDK features a large 14.4-jo living area with a counter-style kitchen, excellent storage with a shoe-in closet, and three pre-installed air conditioners. This pet-friendly, high-spec apartment will be available for move-in in late November.