




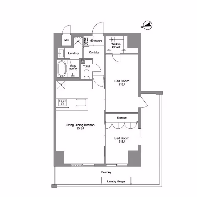
Prima Stella 0905 is a newly built 2LDK residence offering 63.74㎡ of clean, contemporary living space on the 9th floor of a 14-story building in Nishi-Shinjuku. Completed in 2025, the unit features a functional layout with a bright LDK, two private bedrooms, full flooring, and a well-equipped system kitchen. Comfort-focused amenities include a separate washroom, bathroom dryer, reheating bath system, washlet toilet, in-unit laundry space, air-conditioning, and ample storage such as a walk-in closet and an additional trunk room. The building provides auto-lock security, 24-hour garbage disposal, parcel delivery lockers, and bicycle parking, making everyday living convenient and efficient. With pet keeping, SOHO use, and musical instruments prohibited, the property maintains a quiet, residential environment suitable for tenants seeking order, privacy, and stability.
Neighborhood
Located in Nishi-Shinjuku 8-chome, the property offers excellent urban connectivity—just 5 minutes from Nishi-Shinjuku Station and 12 minutes from Shinjuku Station, giving direct access to major transit lines and Tokyo’s largest commercial district. The neighborhood balances business convenience with residential comfort, offering supermarkets, cafés, convenience stores, restaurants, and essential services within easy walking distance. Its central position makes it ideal for professionals or couples who want fast access to city hubs while enjoying the practicality and comfort of a newly built high-quality residence.