







.avif)
.avif)




.avif)
.avif)
















.avif)















.avif)















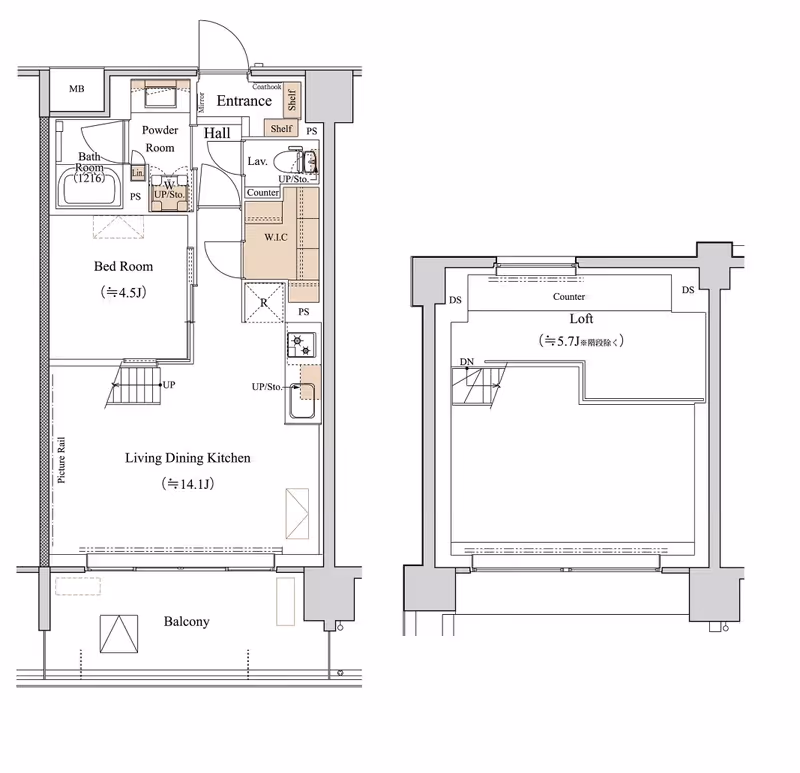
Blanciesta Nishimagome 0603 is a modern 2LDK apartment offering 72㎡ of well-designed living space on the 6th floor of a 7-story building completed in 2025. The layout provides a comfortable separation between the living-dining area and two private bedrooms, creating a sense of openness while maintaining privacy. Large windows invite ample natural light, enhancing the airy atmosphere throughout the home. The contemporary construction ensures up-to-date amenities and a smooth, comfortable daily experience. Standard initial costs apply for moving in.
Neighborhood
Situated in Nakaikegami, Ota Ward, this residence enjoys a peaceful yet convenient setting within a primarily residential neighborhood. The area is known for its calm streets, local parks, and a welcoming community atmosphere, making it suitable for both professionals and families. Everyday essentials such as supermarkets, cafés, and convenience stores are easily accessible nearby. With Nishimagome Station just a 12-minute walk away, residents benefit from straightforward access to central Tokyo and major transport links, balancing quiet living with urban convenience.