


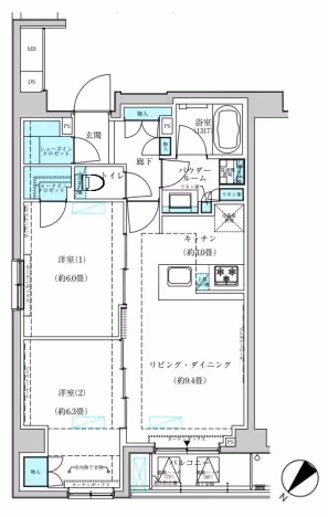
Vik Bright Tsukishima 801 is a modern 2LDK apartment offering 56㎡ of well-planned living space on the top (8th) floor of a contemporary building completed in 2022. The layout is designed for both comfort and practicality, with distinct living, dining, and kitchen areas complemented by two separate bedrooms—ideal for couples, small families, or those seeking a dedicated home office. Elevated on the highest floor, the residence benefits from excellent natural light and a sense of privacy, while efficient storage and quality fixtures enhance everyday convenience. The building’s recent construction ensures up-to-date amenities and a secure, comfortable environment. Standard initial costs apply.
Neighborhood
Situated in Tsukishima 1-chome within Chuo Ward, the property places you in a vibrant and highly accessible part of central Tokyo. Tsukishima Station is just a three-minute walk away, with Kachidoki Station also within easy reach, offering smooth connections across the city. The neighborhood is known for its blend of residential calm and local charm, with Tsukishima Monja Street, a beloved destination for dining, close by. Everyday needs are easily met with nearby conveniences such as Drug Papas and Mos Burger, while Tsukishima Sports Plaza and local nursery schools contribute to a well-rounded urban lifestyle.