





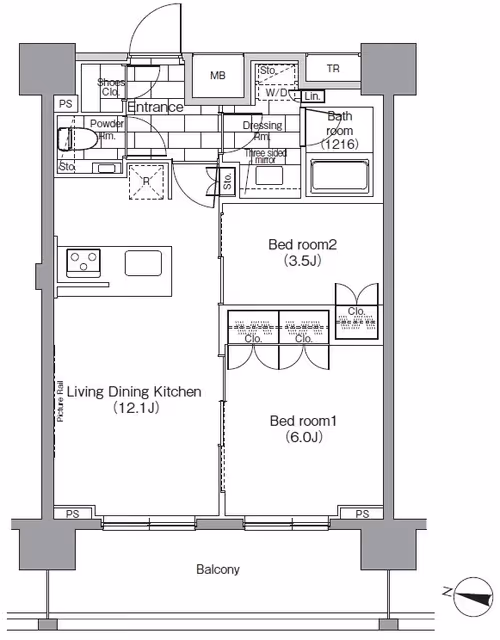
Park Habio Ebisu 1402 is a 2LDK apartment offering 50㎡ of well-planned living space on the 14th floor of a modern 14-story building completed in 2013. The layout features a comfortable separation between the living-dining area and two private bedrooms, making it suitable for both individuals and small families. Large windows on the uppermost floor provide excellent natural light and a sense of openness, while quality fixtures and finishes contribute to a refined urban lifestyle. Practical amenities and thoughtful design details ensure everyday comfort, and standard initial costs apply for moving in.
Neighborhood
Situated in Ebisu Minami 1-chome, this residence places you in the heart of Ebisu, one of Shibuya Ward’s most desirable and cosmopolitan neighborhoods. The area is known for its vibrant yet relaxed atmosphere, with a wide array of cafés, restaurants, and supermarkets nearby. Residents enjoy easy access to Ebisu Station just moments away, offering quick connections across Tokyo. The neighborhood’s blend of lively city energy and residential calm makes it a popular choice among professionals and those seeking convenience with a touch of sophistication.