



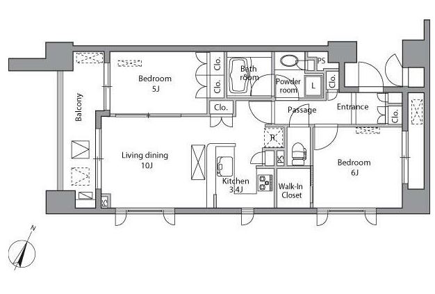
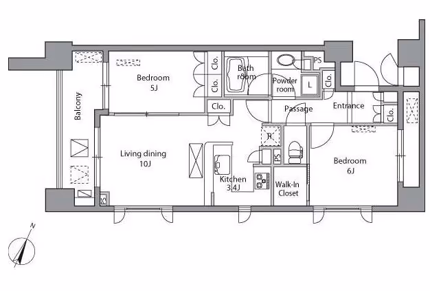
Residia Suidobashi Room 1205 is a well-designed 2LDK apartment offering 57㎡ of comfortable living space on the 12th floor of a 14-story building completed in 2004. The thoughtful layout separates the living and dining area from the two bedrooms, creating a sense of privacy and flexibility for both relaxation and entertaining. Elevated on a high floor, the residence benefits from ample natural light and a pleasant sense of openness, while practical features and efficient use of space ensure everyday convenience. Modern fixtures and finishes contribute to a comfortable urban lifestyle, and standard initial costs apply for moving in. This apartment is well suited for those seeking a balance of functionality and comfort in a central Tokyo location.
Neighborhood
Situated in KandaMisakicho, Chiyoda, this property enjoys a prime position within one of Tokyo’s most central and accessible wards. Residents benefit from excellent connectivity, with Suidobashi Station just four minutes away and Kudanshita Station a short seven-minute walk, making commutes across the city especially convenient. The immediate area is dotted with practical amenities, including the 7-Eleven Kanda Misakicho 2-chome store for daily necessities and dining options such as Gyoza no Osho Suidobashi branch and Mos Burger Suidobashi Nishi-dori store. With the nearby garden air tower adding a touch of greenery and urban sophistication, the neighborhood offers a harmonious blend of city convenience and everyday comfort.