

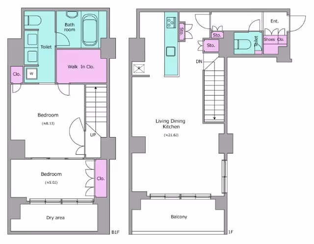
Residia Shirokane Takanawa 0101 is a spacious 2LDK apartment offering 97㎡ of comfortable living on the first floor of a modern 10-story building completed in 2012. The generous layout provides well-separated bedrooms and a large living-dining area, allowing for both privacy and open communal space. Ample natural light filters through the residence, enhancing the sense of openness throughout. Practical features and a functional floor plan make this home well-suited for both families and professionals seeking room to relax and entertain. Standard initial costs and a two-year contract period apply.
Neighborhood
Situated in Takanawa 1-chome within Minato Ward, the property enjoys a prime location just a short walk from Shirokane Takanawa and Sengakuji stations, offering convenient access to central Tokyo. The neighborhood is known for its refined, international atmosphere, blending tranquil residential streets with the vibrancy of city life. Residents benefit from nearby supermarkets, cafés, and everyday amenities, while the area’s parks and green spaces provide welcome spots for relaxation. With excellent transport links and a calm yet connected environment, Takanawa is ideal for those seeking a balanced urban lifestyle.