


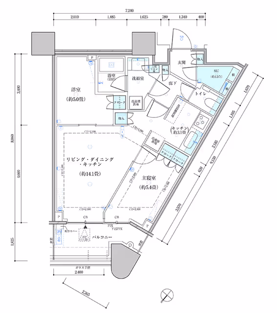
Park Tower Kachidoki South Building 4906 presents a modern 2LDK apartment offering 57㎡ of thoughtfully designed living space on the 49th floor of a striking 58-story tower completed in 2023. The high-floor location ensures excellent natural light and a sense of openness, while the efficient layout provides clear separation between the living area and bedrooms for added privacy. Contemporary finishes and practical features create a comfortable environment suited to both daily life and entertaining. Residents benefit from the peace of mind and convenience expected in a premium high-rise, with security and building amenities supporting a sophisticated urban lifestyle. Standard initial costs apply.
Neighborhood
Situated in Kachidoki 4-chome within Chuo Ward, this residence enjoys a prime position in one of Tokyo’s most dynamic waterfront districts. The property is just a two-minute walk from Kachidoki Station, offering swift access to central Tokyo, while Tsukishima Station is also within reach for additional connectivity. Chuo Ward is renowned for its blend of modern city living and riverside tranquility, providing a welcoming atmosphere for professionals and families alike. The area’s well-planned streets and proximity to transport make daily life both convenient and comfortable.