

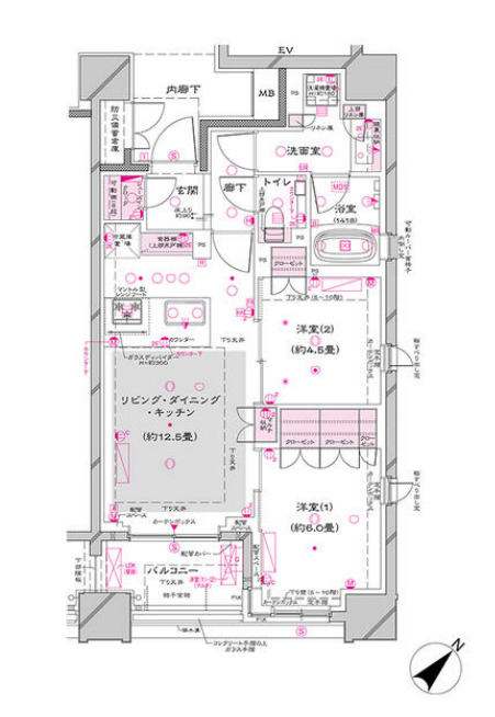
Opus Residence Ginza East 501 is a modern 2LDK apartment offering 56㎡ of well-designed living space on the 5th floor of a 12-story building completed in 2021. The layout provides a comfortable separation between the living area and private bedrooms, creating a sense of openness while maintaining privacy. Large windows allow for ample natural light, enhancing the airy atmosphere throughout the home. The contemporary kitchen and bathroom facilities are thoughtfully appointed for everyday convenience, while practical storage solutions help keep the space organized. Residents benefit from the security and comfort features expected in a recently built residence. Standard initial costs apply.
Neighborhood
Situated in Tsukiji, Chuo Ward, this property places you in one of Tokyo’s most dynamic and accessible neighborhoods. Both Tsukiji Station and Shintomi Town Station are within a seven-minute walk, offering excellent access to central Tokyo and beyond. The local area is known for its blend of traditional charm and modern amenities, with daily conveniences such as FamilyMart Chuo Akashicho and Lawson Store 100 LS Tsukiji 7-chome just steps away. Living here, you can enjoy the vibrant energy of Chuo while benefiting from the practicalities of urban life, making it a highly appealing choice for professionals and couples seeking comfort and connectivity.