




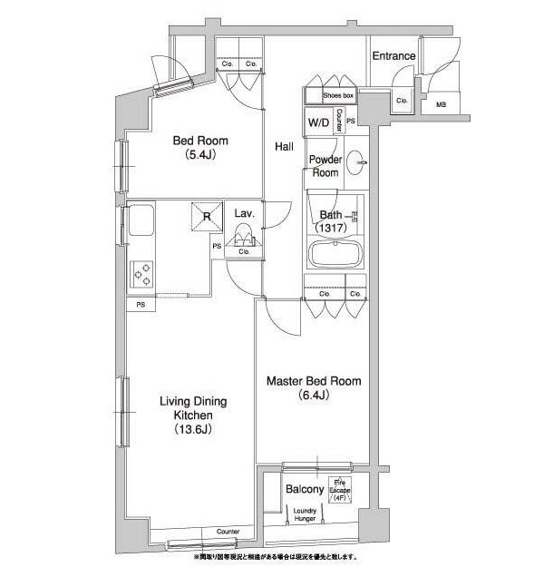
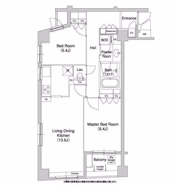
Comforia Harajuku 304 is a 2LDK residence offering 62.99㎡ of well-arranged living space on the 3rd floor of a 7-story building in the highly sought-after Harajuku–Sendagaya area. The unit features a southeast-facing layout with ample natural light, a spacious living area, a separate bath and toilet with a reheating system, an independent vanity, and full flooring throughout, along with a walk-in closet for efficient storage. Building amenities include auto-lock entry, delivery lockers, 24-hour garbage disposal, bicycle and motorcycle parking, and elevator access, supporting convenient city living. With pet-friendly policies and solid security features, the property provides a comfortable and practical environment suited to modern urban lifestyles.
Neighborhood
Located just 4 minutes from Harajuku Station on the JR Yamanote Line and 6 minutes from Meiji-Jingumae Station, the apartment offers exceptional access to major fashion, culture, and business hubs across central Tokyo. The surrounding area blends residential calm with vibrant city energy, placing cafés, supermarkets, convenience stores, and daily services within easy reach. Proximity to Omotesando, Kita-Sando, and Yoyogi Park further enhances the appeal, offering a balanced environment for both relaxation and activity. With strong connectivity and a premium address, the neighborhood suits professionals, couples, and small families seeking a convenient yet refined Harajuku-area residence.