





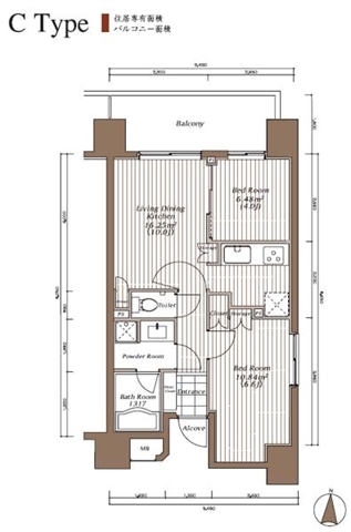
The Park Cross Kinshicho Residence 0601 is a 1SLDK apartment offering 45㎡ of thoughtfully arranged living space on the 6th floor of a modern 10-story building completed in 2007. The layout features a comfortable living and dining area, a separate bedroom, and an additional service room, providing flexible options for a home office or extra storage. Large windows invite natural light, creating a bright and welcoming atmosphere throughout the home. Practical features and a well-maintained interior make this residence a comfortable choice for singles or couples seeking a balance of functionality and style. Standard initial costs apply, in line with the area’s rental market.
Neighborhood
Situated in Taihei, Sumida Ward, this property enjoys a convenient urban setting just a short walk from Kinshicho Station, offering smooth access to central Tokyo and beyond. The neighborhood blends residential calm with the vibrancy of a major transport hub, providing easy access to supermarkets, convenience stores, and a variety of local dining options. The area is known for its practical amenities and lively yet approachable atmosphere, making daily errands and commuting straightforward. Residents can also enjoy nearby parks and community spaces, contributing to a well-rounded city lifestyle in one of eastern Tokyo’s most accessible districts.
