

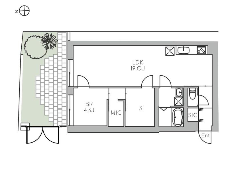
THE GRANDUO CHITOFUNA 103 is a newly built 1SLDK apartment offering 61㎡ of thoughtfully arranged living space on the first floor of a modern three-story building completed in 2025. The layout provides a comfortable separation between the main living and dining area, a dedicated bedroom, and an additional versatile space ideal for a study or storage. Large windows allow for ample natural light, enhancing the sense of openness throughout the residence. Modern fixtures and efficient design ensure both comfort and practicality for daily life. Residents benefit from the convenience and security expected in a contemporary Setagaya property. Standard initial costs apply.
Neighborhood
Situated in Sakuragaoka, Setagaya, this apartment enjoys a quiet residential setting with easy access to central Tokyo. Chitose Funabashi Station is just a 9-minute walk away, while Soshigaya Okura Station can be reached in 17 minutes, making commuting straightforward. Setagaya is known for its leafy streets, family-friendly atmosphere, and excellent local amenities. The area offers a pleasant balance between urban accessibility and a relaxed neighborhood feel, making it especially appealing for professionals and small families seeking comfort and convenience in western Tokyo.