





.jpg)
.jpg)





.jpg)


.jpg)






.jpg)

.svg.avif)








.svg.avif)











































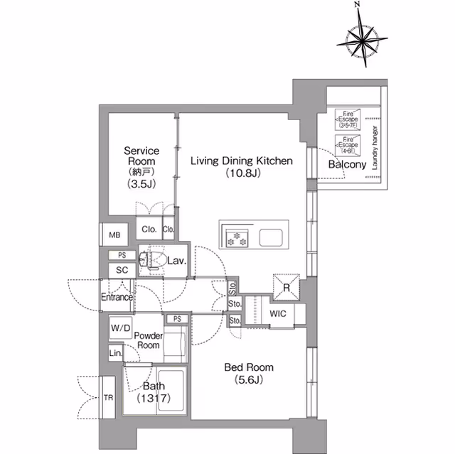
This brand-new 1SLDK apartment in Infolia Liv Nishiojima South offers 48㎡ of modern living in Koto Ward. Just 11 minutes from Nishi-Ojima Station on the Toei Shinjuku Line, it provides convenient access to central Tokyo while keeping a residential feel. Located on the 2nd floor of an 8-story building completed in March 2025, the unit features an east-facing layout with floor heating, system kitchen, separate bath and toilet, and a walk-in closet. Residents enjoy security with auto-lock and cameras, plus free internet, delivery lockers, and bicycle/motorbike parking. Pet-friendly (small dog or up to two cats), it also comes with a free trunk room, making it ideal for singles or couples seeking a stylish, functional home in a newly built residence.