




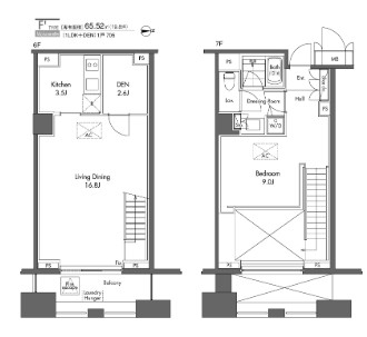
Gladito Shiodome Rosso 705 is a well-appointed 1SLDK apartment offering 66㎡ of comfortable living space on the 7th floor of a 12-story building completed in 2006. The thoughtfully designed layout provides a spacious living-dining area, a separate bedroom, and an additional service room that can flexibly serve as a study or storage. Large windows bring in ample natural light, creating a bright and inviting atmosphere throughout the home. Practical features and efficient use of space ensure both comfort and everyday convenience. Residents benefit from the privacy and tranquility of an upper-floor setting, while standard initial costs apply for moving in.
Neighborhood
Situated in HigashiShinbashi within Minato Ward, this property enjoys a prime location just five minutes from Shiodome Station and a short walk to Shinbashi Station, offering excellent access across central Tokyo. The neighborhood is characterized by its blend of modern city living and everyday convenience, with shopping and dining options such as Caretta Shiodome and Pedi Shiodome nearby. Daily necessities are easily met with supermarkets like Maruetsu Petit Shiodome Siosite store and Motomachi Union by Keikyu Store Shimbashi store within easy reach. The area’s vibrant urban atmosphere, combined with proximity to key business and leisure hubs, makes it an ideal base for professionals seeking both connectivity and comfort.