

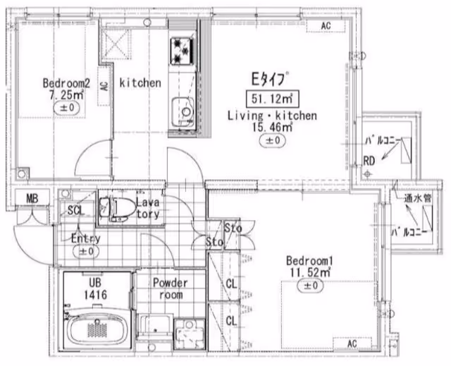
This 2LDK apartment offers 51㎡ of thoughtfully designed living space on the 3rd floor of a modern, four-story building completed in 2023. The layout provides a comfortable separation between the living and private areas, with an open-plan living-dining-kitchen that maximizes both space and natural light. Well-proportioned bedrooms ensure privacy and flexibility for couples, small families, or those needing a home office. Contemporary finishes and efficient fixtures throughout the apartment contribute to a clean, inviting atmosphere. Practical storage solutions and secure entry add to the everyday convenience, while large windows create a bright, welcoming environment. Standard initial costs apply for this residence.
Neighborhood
Situated in Kamiuma, Setagaya, this property enjoys a peaceful yet highly accessible residential setting. Komazawa-Daigaku Station is just a four-minute walk away, making commutes into central Tokyo straightforward, while Nishitaishido Station is also within reach. The neighborhood is well-served by local amenities, with supermarkets such as Maruetsu Manaka and Super Ozeki Nozawa nearby, as well as convenience stores like Lawson and Family Mart for daily needs. Setagaya is renowned for its relaxed, community-oriented atmosphere, offering a balance of urban convenience and residential tranquility ideal for both professionals and families.