


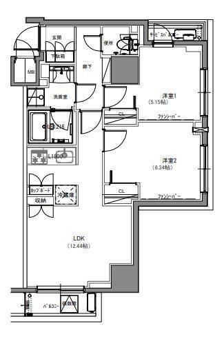
This 2LDK apartment, located on the 2nd floor of a 10-story reinforced concrete building, offers a spacious 54.82m² of living space with a southwest-facing layout, ensuring plenty of natural light. Built in December 2022, it is modern and pet-friendly, ideal for couples or small families. The apartment features two bedrooms (6.3 and 5.1 tatami), a 12.4-tatami living-dining-kitchen area, and two balconies. Conveniently located near multiple train lines, including the Toei Shinjuku Line (Morishta Station, 8 min), JR Sobu Line (Ryogoku Station, 11 min), and Toei Oedo Line (Ryogoku Station, 7 min), the property offers easy access to the city while being close to local supermarkets and parks.