

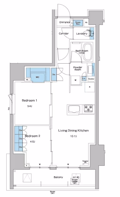
Le Font Progress Shimura Sakagami 606 is a modern 2LDK apartment offering 56㎡ of thoughtfully designed living space on the 6th floor of an 8-story building completed in 2024. The layout provides a comfortable separation between the living-dining area and private bedrooms, making it well-suited for both couples and small families. Large windows invite natural light into the main living spaces, enhancing the sense of openness and comfort throughout the home. Practical features and contemporary finishes ensure a smooth daily routine, while efficient storage solutions help keep the interior organized. Residents benefit from the security and convenience of a recently built apartment, with standard initial move-in costs applying.
Neighborhood
Situated in Shimura, Itabashi, this property enjoys a quiet yet well-connected residential setting. Both Shimura Sakagami and Shimura 3-chome stations are within easy walking distance, providing straightforward access to central Tokyo and surrounding neighborhoods. Daily necessities are close at hand, with supermarkets like Santoku Shimura and convenience stores such as Lawson and 7-Eleven nearby, making shopping and errands simple and efficient. Residents can also enjoy the variety of shops at Seven Town Azukizawa, adding to the area's practical appeal. The neighborhood offers a relaxed atmosphere, ideal for those seeking a balance between urban convenience and a peaceful living environment.