

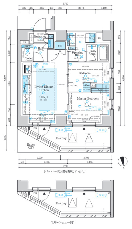
Sunwood Flats Shinjuku Yotsuya 3-chome 303 is a modern 2LDK apartment offering 46㎡ of thoughtfully designed living space on the 3rd floor of a 14-story building completed in 2025. The layout provides a comfortable separation between the living area and bedrooms, maximizing privacy and usability within a compact footprint. Large windows invite natural light into the main living spaces, creating an airy and welcoming atmosphere. The contemporary design ensures practical daily living, with quality fixtures and finishes throughout. Standard initial costs and contract terms apply.
Neighborhood
Situated in Shinanomachi, this residence enjoys a convenient position in Shinjuku Ward, one of Tokyo’s most vibrant and cosmopolitan districts. The neighborhood blends urban energy with a sense of local community, offering easy access to supermarkets, cafés, and everyday amenities. Residents benefit from proximity to both Yotsuya 3-chome and Shinanomachi stations, providing smooth connections to central Tokyo and beyond. The area is well-suited for professionals seeking quick commutes as well as those who appreciate the lively yet balanced atmosphere of Shinjuku. Parks and green spaces nearby offer welcome opportunities for relaxation amid the city bustle.