

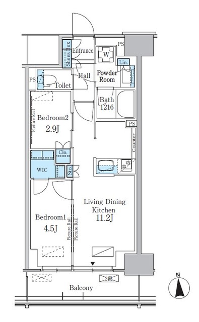
Park Axis Shinjuku Hyakunincho is a newly built 2LDK apartment offering 45㎡ of thoughtfully designed living space on the 7th floor of a modern, seven-story building completed in 2024. The layout provides a comfortable separation between the living-dining area and two private bedrooms, making it ideal for both couples and small families seeking functionality and privacy. Large windows on the upper floor invite ample natural light, creating a bright and airy atmosphere throughout the home. The efficient floor plan maximizes usable space, while contemporary fixtures and finishes ensure a pleasant day-to-day experience. Standard initial costs apply, in line with high-quality Tokyo rentals.
Neighborhood
Situated in Hyakunincho, Shinjuku, the property enjoys a vibrant urban setting with convenient access to both Okubo and Shin Okubo Stations, connecting residents quickly to central Tokyo and beyond. Everyday essentials are within easy reach, with My Basket Shinjuku Hyakunincho 2-chome store and Sugi Pharmacy Kita-Shinjuku 3-chome branch just a short stroll away. The presence of FamilyMart Otakibashi Street Store adds further convenience for quick shopping or late-night needs. Shinjuku’s dynamic blend of international culture, dining, and entertainment is close at hand, while the local neighborhood retains a friendly, residential feel, making it well suited for those seeking both excitement and comfort in the heart of the city.