





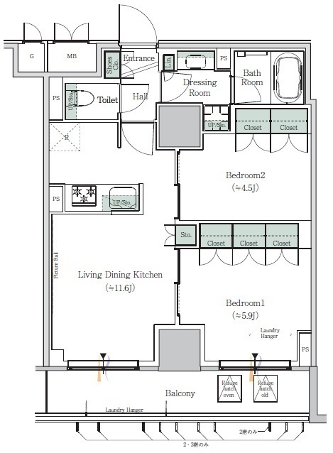
This 2LDK apartment offers 52㎡ of efficiently designed living space on the 15th floor of a modern, 15-story building completed in 2024. The high-floor position ensures excellent natural light and a sense of openness throughout the home, while the thoughtful layout separates the living-dining area from the two bedrooms for added privacy and comfort. Contemporary finishes and practical features create a welcoming environment suited for both relaxation and daily routines. With a long-term contract available and standard initial costs, this residence is ideal for those seeking stability and convenience in central Tokyo.
Neighborhood
Situated in Nishi Nippori 5-chome in Arakawa Ward, the property enjoys a vibrant urban setting with easy access to local amenities. The neighborhood is known for its blend of residential calm and convenient city living, offering supermarkets, cafés, and everyday shops within a short walk. Excellent transport connections are a highlight, with Nishi Nippori Station just minutes away, providing smooth commutes to major Tokyo hubs. The area balances a friendly, community-oriented atmosphere with the energy of city life, making it an appealing choice for professionals and families alike.