





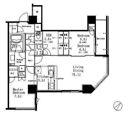
MFPR Meguro Tower 1806 is a 2LDK apartment offering 64㎡ of comfortable living space on the 18th floor of a modern 25-story building completed in 2008. The well-designed layout separates private and shared areas, creating a sense of openness in the living-dining room while maintaining privacy for both bedrooms. Large windows invite natural light and provide elevated city views, enhancing the atmosphere throughout the home. Practical features and contemporary finishes ensure a pleasant daily experience, with standard initial costs applying.
Neighborhood
Situated in Meguro 1-chome, this residence enjoys a prime location in Meguro Ward, known for its blend of urban convenience and relaxed residential charm. The neighborhood offers easy access to Meguro Station within a short walk, connecting residents efficiently to central Tokyo and major business districts. The area is dotted with supermarkets, cafés, and everyday amenities, making daily life both convenient and enjoyable. Tree-lined streets and nearby parks contribute to a welcoming environment, appealing to professionals and families seeking a balanced city lifestyle.