


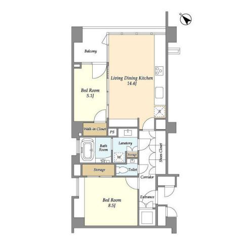
This 2LDK apartment offers 70㎡ of well-proportioned living space, providing a comfortable balance between private bedrooms and an open-plan living, dining, and kitchen area. The efficient layout is ideal for those seeking both functionality and a sense of spaciousness, with natural light enhancing the overall atmosphere. Standard initial costs apply.
Neighborhood
Situated in Akasaka 6-chome within Minato Ward, this residence enjoys a prime central Tokyo location with convenient access to both Akasaka and Roppongi stations. The neighborhood offers a blend of everyday convenience and urban energy, with several convenience stores such as Seven-Eleven Akasaka 6-chome and Lawson Akasaka 6-chome nearby, as well as Sugi Pharmacy Akasaka Branch for daily essentials. This area is well-suited for professionals and families seeking a vibrant yet practical city lifestyle.