



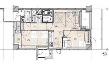
NK Aoyama Homes 601 this 2LDK apartment offers 62㎡ of comfortable living space on the 6th floor of a 7-story building completed in 1999. The layout is designed for both functionality and privacy, featuring two separate bedrooms alongside a bright and open living-dining area. Large windows invite ample natural light, creating an inviting atmosphere throughout the home. The practical floor plan ensures efficient use of space, making it suitable for a variety of lifestyles, from couples to small families. Modern conveniences and thoughtful design enhance everyday comfort, while standard initial costs apply for moving in.
Neighborhood
Situated in the heart of Nishiazabu, Minato, this residence enjoys a prime location with easy access to both Nogizaka and Omotesando stations, connecting you seamlessly to central Tokyo. The neighborhood is known for its international flair and vibrant urban lifestyle, with upscale dining and boutique shopping nearby. Everyday essentials are within easy reach, with Seijo Ishii Nishiazabu store and FamilyMart just a short stroll away. Residents can also enjoy local favorites like Kaotan Ramen Totsuya and Yakiniku Toraji Kasumicho, adding to the area’s appeal. This sought-after address offers a blend of convenience, culture, and cosmopolitan living.