





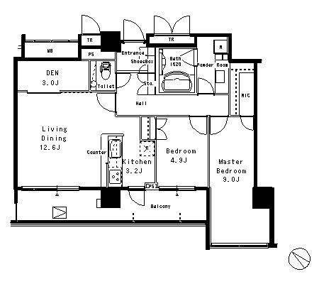
This 2SLDK apartment offers 78㎡ of well-organized living space on the 2nd floor of a 25-story tower completed in 2008. The layout provides a spacious living-dining area, two comfortable bedrooms, and an additional versatile room suitable for a study or storage, ensuring both flexibility and practicality. Large windows invite natural light into the main living spaces, creating an open and inviting atmosphere. Modern fixtures and thoughtful design details support a comfortable urban lifestyle, while the building’s scale offers a sense of privacy and security. Standard initial costs apply.
Neighborhood
Situated in Meguro 1-chome, this residence enjoys a prime location within Meguro Ward, one of Tokyo’s most desirable and cosmopolitan neighborhoods. The area blends a relaxed residential feel with easy access to daily conveniences, including supermarkets, cafés, and casual dining options. Residents benefit from excellent connectivity, with Meguro Station just a short walk away, providing smooth access to central Tokyo and beyond. The local streets are known for their greenery and pleasant ambiance, making the neighborhood appealing for both professionals and families seeking a balance of comfort and urban convenience.