





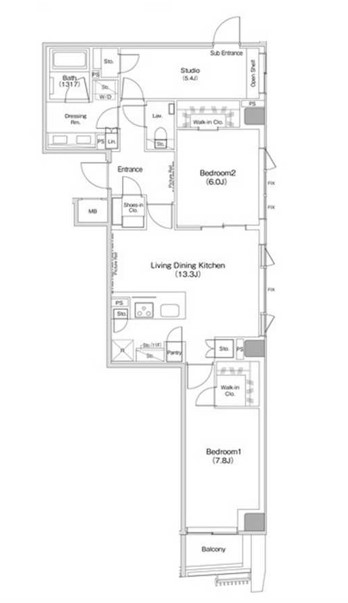
The Park Habio Shibuya Cross presents a 2SLDK apartment offering 77㎡ of well-planned living space on the 9th floor of an 11-story building completed in 2022. The thoughtful layout provides a spacious living and dining area, two comfortable bedrooms, and an additional versatile room suitable for a study or storage. Large windows invite ample natural light, creating an airy and welcoming atmosphere throughout the home. Modern finishes and efficient design ensure both comfort and functionality, while practical features such as secure entry and contemporary amenities support a convenient urban lifestyle. Residents can expect standard initial costs associated with high-quality Tokyo rentals.
Neighborhood
Situated in Aobadai, Meguro, this property enjoys a prime location with easy access to both Shinsen Station in six minutes and Shibuya Station in eleven minutes, connecting you seamlessly to Tokyo’s vibrant city life. The neighborhood blends the relaxed charm of Meguro with the dynamic energy of nearby Shibuya, offering a balanced environment ideal for professionals and families. Daily shopping is effortless with Maruetsu Petit Shibuya Shinsen store and FamilyMart Meguro Shinsencho store just a short walk away, while essential services like drug yoshida are also close at hand. The area is known for its pleasant streets, local cafés, and convenient amenities, making it a highly desirable address for those seeking both comfort and connectivity in central Tokyo.