
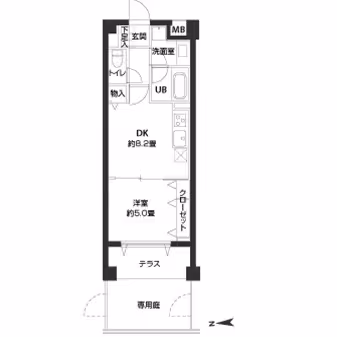
Castalia Jiyugaoka 106 is a well-designed 1DK apartment offering 35㎡ of comfortable living space on the first floor of a five-story building completed in 2004. The layout provides a practical separation between the bedroom and living/dining area, creating a sense of privacy and flexibility for both relaxation and entertaining. Large windows help bring in natural light, while the efficient floor plan ensures easy day-to-day living. Modern conveniences and thoughtful design elements contribute to a pleasant residential experience. Standard initial costs apply for moving in.
Neighborhood
Situated in the desirable Jiyugaoka area of Meguro, this property enjoys a vibrant yet relaxed atmosphere known for its blend of stylish boutiques and cozy cafés. Residents benefit from excellent access to Jiyugaoka Station, just eight minutes away, making commuting and exploring Tokyo straightforward. Everyday essentials are close at hand, with Tokyu Store Afrel and Lawson nearby, as well as banking services such as Mizuho Bank and Mitsubishi UFJ Trust and Banking within easy walking distance. The neighborhood’s welcoming streets and convenient amenities make it a popular choice for professionals seeking both comfort and urban accessibility.