



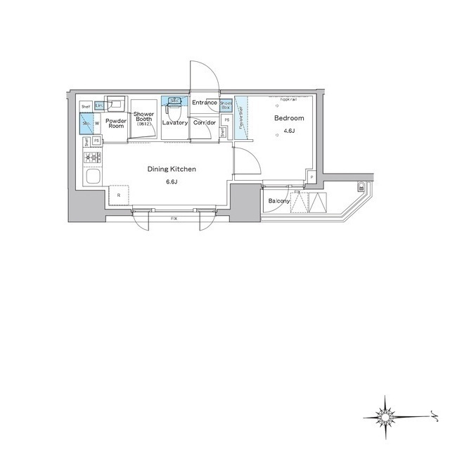
Le Font Progress Monzennakacho Premier 1205 is a contemporary 1DK apartment offering 26㎡ of efficiently designed living space on the 12th floor of a modern 15-story building completed in 2025. The layout separates the bedroom from the main living and dining area, providing a sense of privacy and functionality within a compact footprint. Large windows invite natural light, creating a bright and comfortable atmosphere ideal for singles or couples seeking a streamlined urban lifestyle. Quality fixtures and a practical kitchen enhance daily convenience, while secure entry and well-maintained common areas add peace of mind. Standard initial costs apply, in line with central Tokyo leasing practices.
Neighborhood
Situated in Eitai, Koto Ward, this residence places you within easy reach of Monzennakacho Station, just a short walk away. The neighborhood blends the charm of traditional Tokyo with the convenience of modern city living, offering a mix of local eateries, cafés, supermarkets, and essential services. Koto Ward is known for its riverside promenades and relaxed residential character, making it a pleasant retreat from the bustle of central districts. Excellent train access ensures smooth connections to key business and leisure hubs across the city, while the surrounding streets provide a calm and welcoming atmosphere for daily life.